
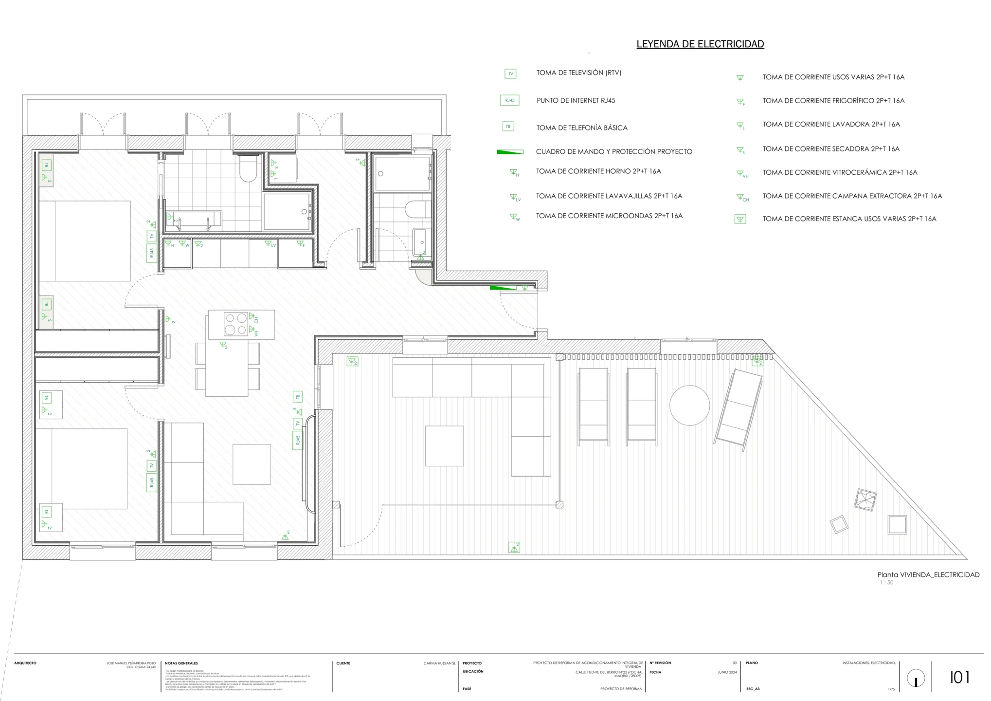
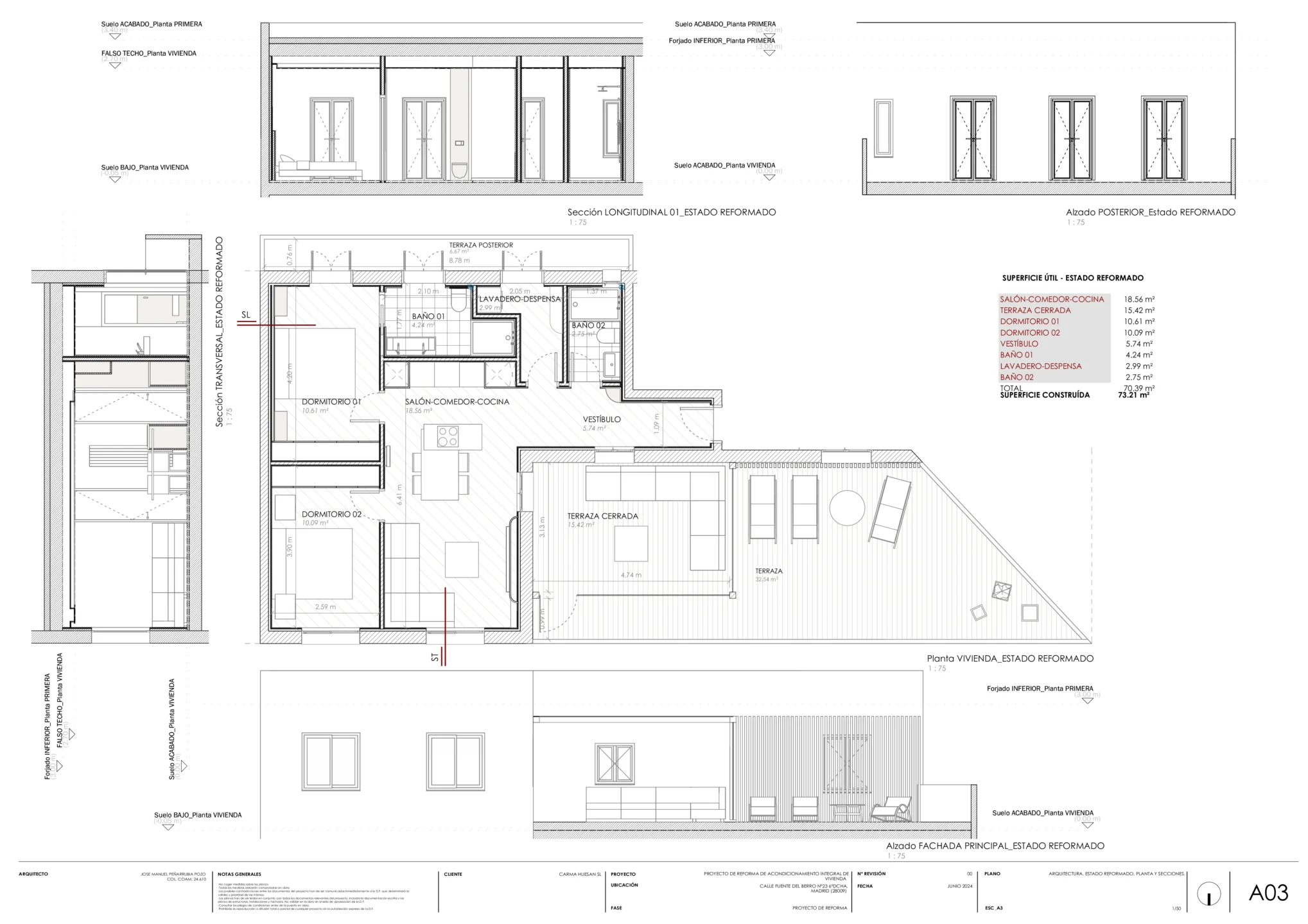
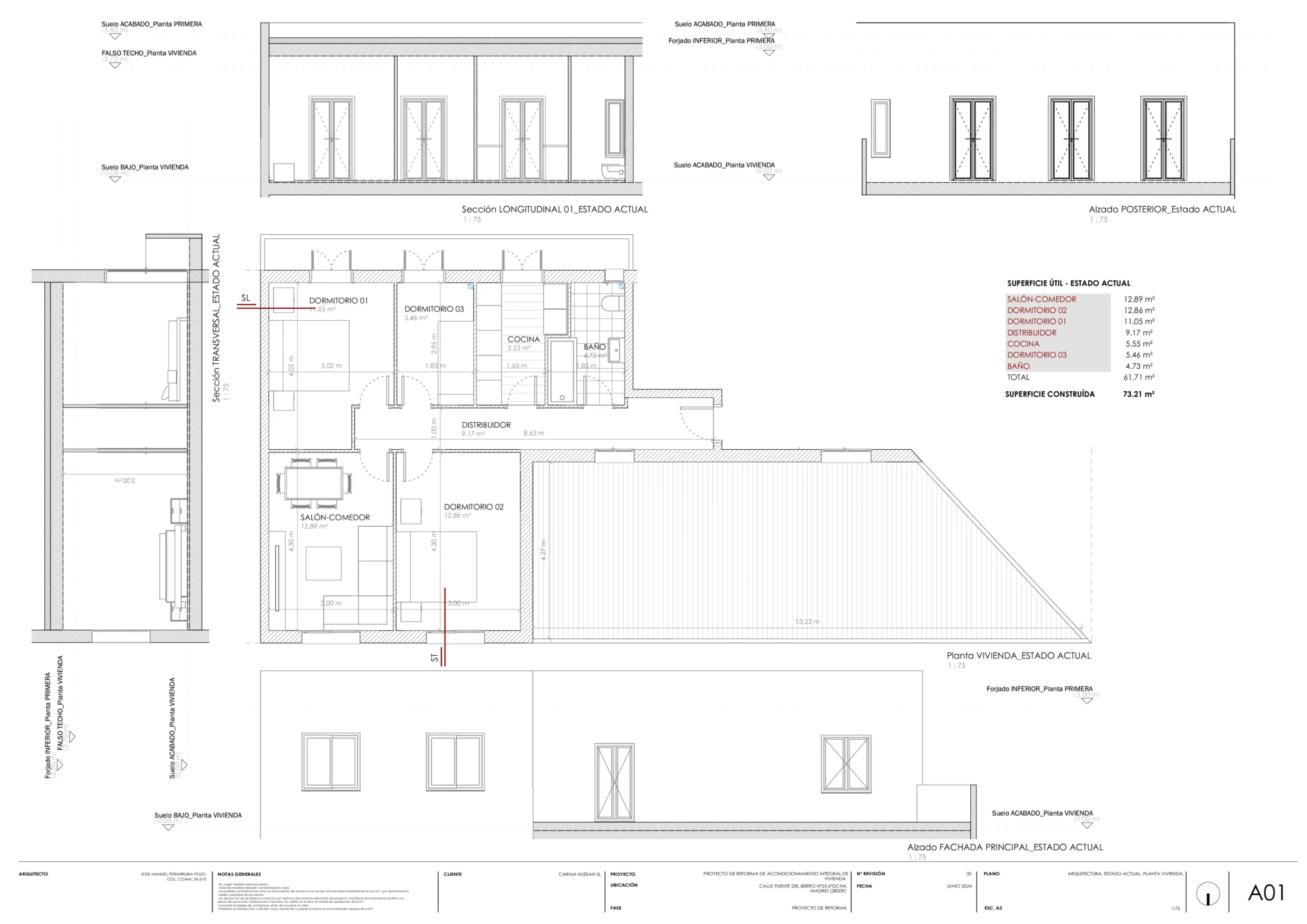
Este exclusivo ático en el Barrio de Salamanca, junto al WiZink Center, ha sido transformado en un espacio sofisticado donde la iluminación juega un papel clave en el diseño. La integración de foseados en el techo y panelados con rasantes LED crea una atmósfera moderna y elegante desde la entrada. La zona social, diseñada para 2 o 3 personas, equilibra confort y funcionalidad, con una cocina integrada que destaca por su isla central y vinotecas empotradas, ideal para disfrutar de momentos únicos en la terraza exterior.
Los dormitorios han sido concebidos para maximizar el confort, con armarios empotrados y un diseño refinado que potencia la sensación de amplitud. Los baños, con duchas de acceso sin nivel elevado, refuerzan la estética lineal y moderna del proyecto. La joya del ático es su terraza, que ofrece un espacio bioclimático regulable y una zona abierta con vistas privilegiadas al WiZink Center, convirtiendo este hogar en un refugio urbano donde lujo y serenidad se fusionan a la perfección.

































