
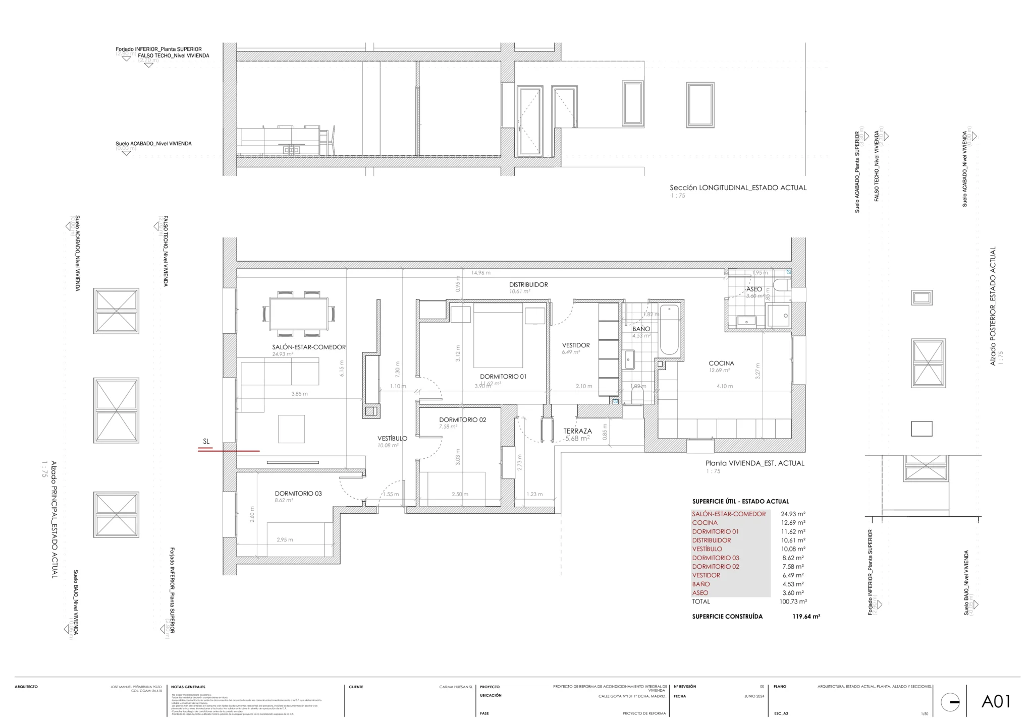
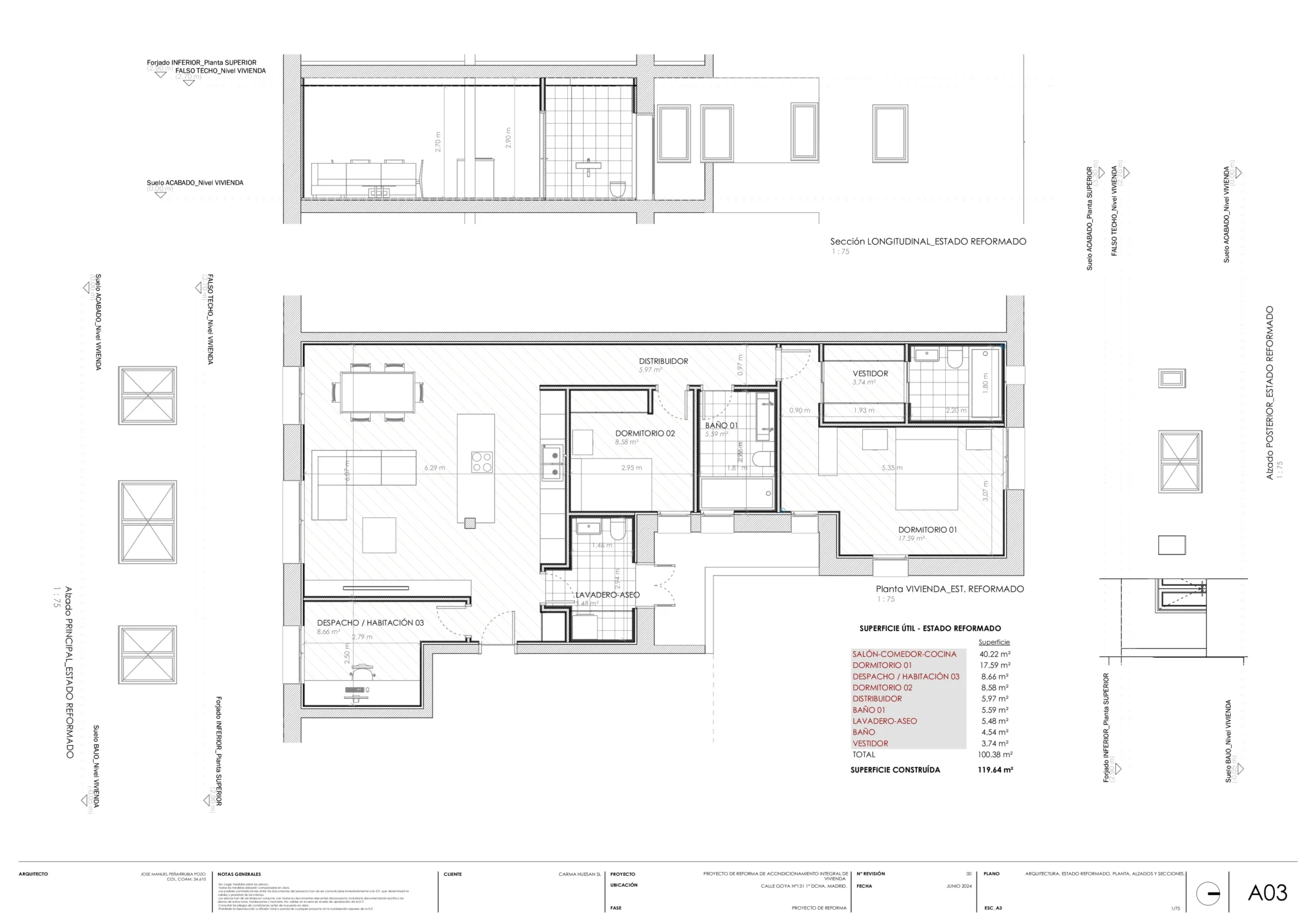
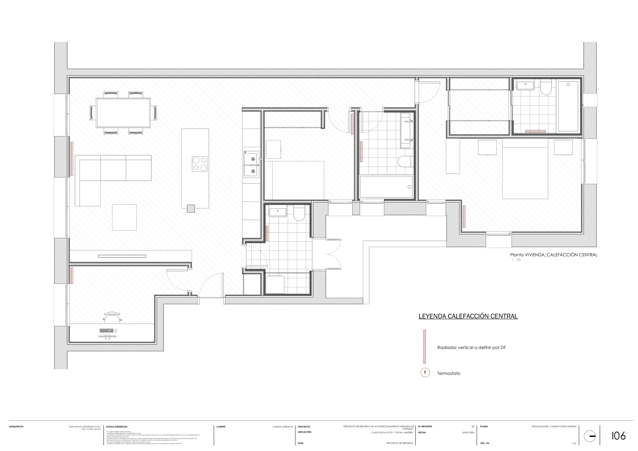
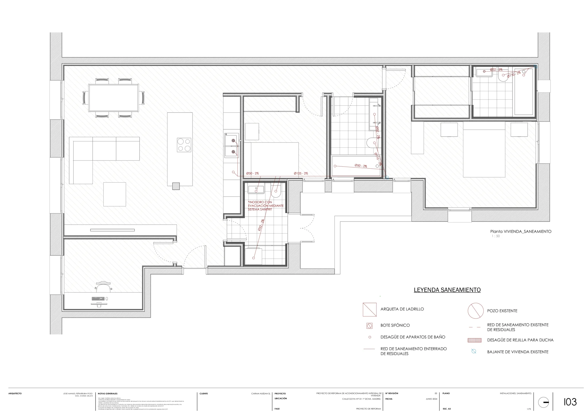
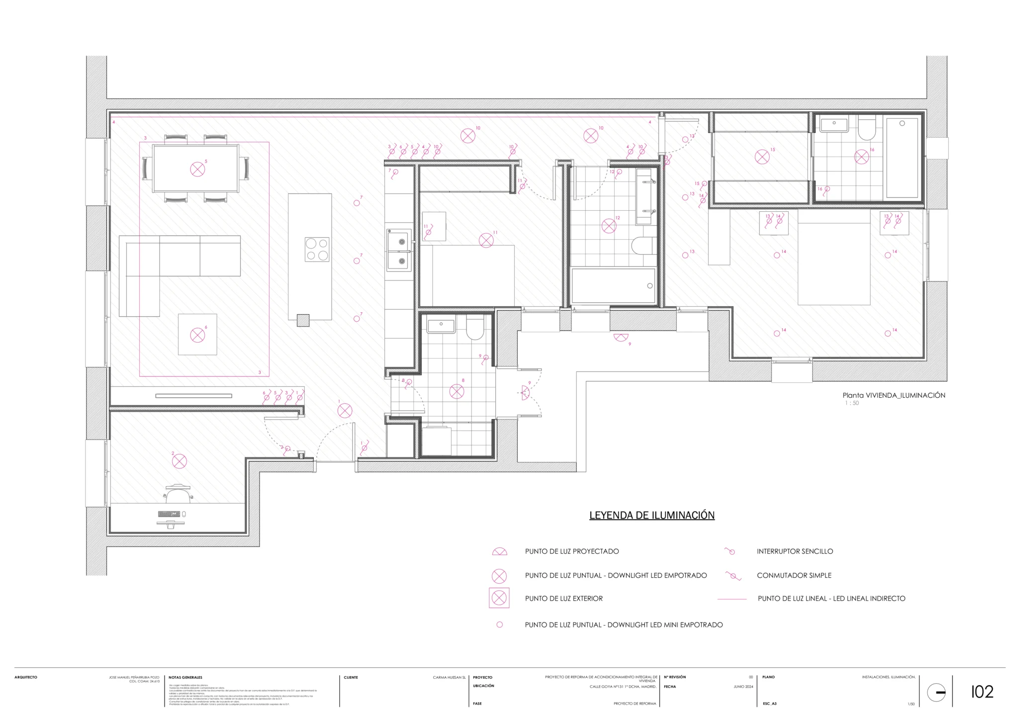
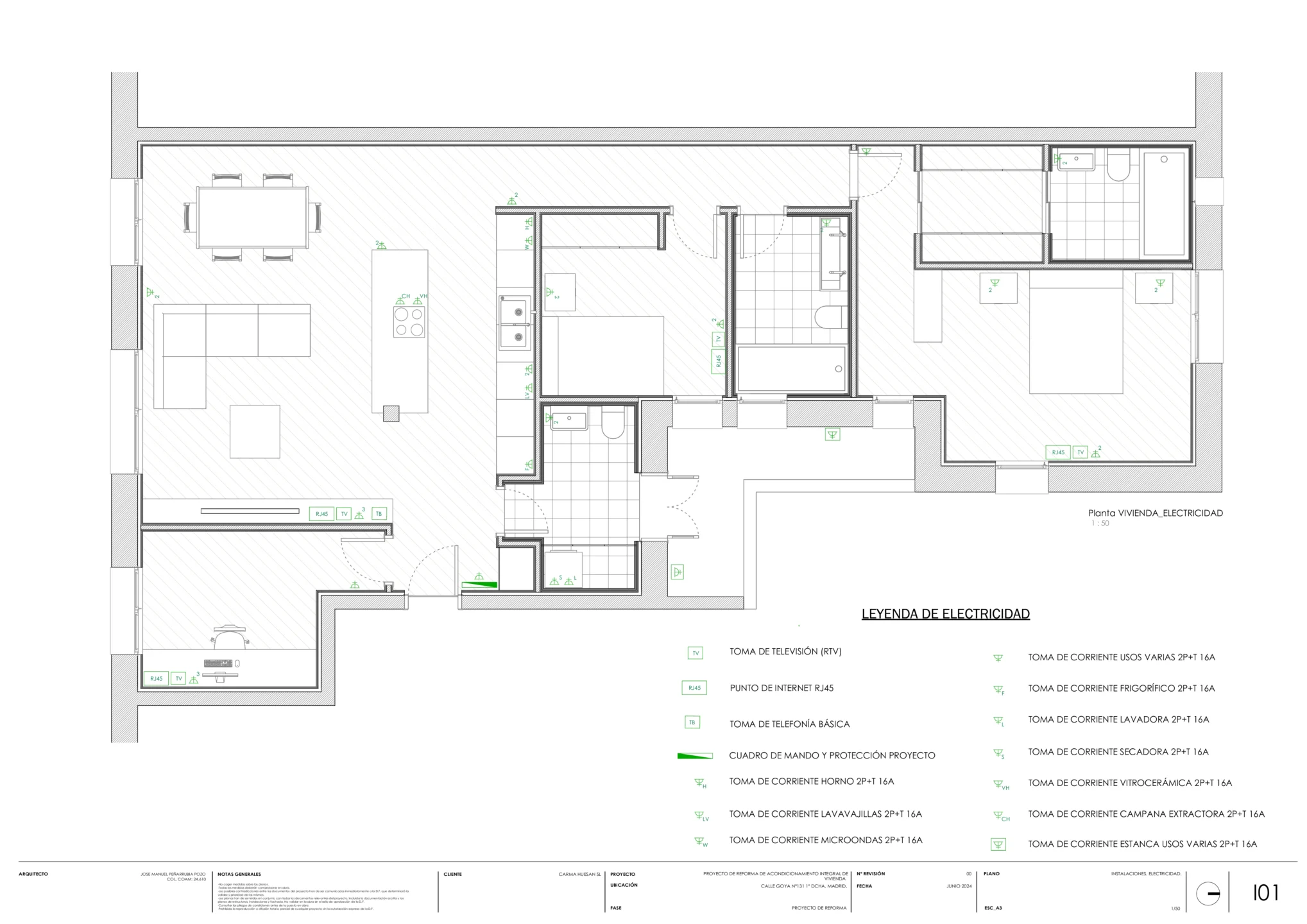
El proyecto en el Barrio de Salamanca, Madrid, presenta un diseño interior que fusiona elegancia clásica y modernidad.
En la sala y cocina, destacan materiales de alta calidad, un pilar revestido que honra la herencia del barrio, y balcones que aportan luz natural y conexión urbana.
La cocina integra funcionalidad y estilo, con una isla central moderna y acabados sofisticados, ideal para la gastronomía diaria y ocasiones especiales.
El diseño global prioriza la comodidad, optimizando la circulación entre espacios con detalles decorativos que unen lo clásico y contemporáneo.
PROYECTO :
G131
UBICACIÓN:
Madrid
FECHA:
2024
CLIENTE:
Real Estate

QUEREMOS SABER SOBRE TU PROYECTO
¿TIENES UN PROYECTO?
NOSOTROS NOS OCUPAMOS
Tu idea merece un espacio único. Cuéntanos tu proyecto y lo hacemos realidad.
Empezar mi Proyecto
































