
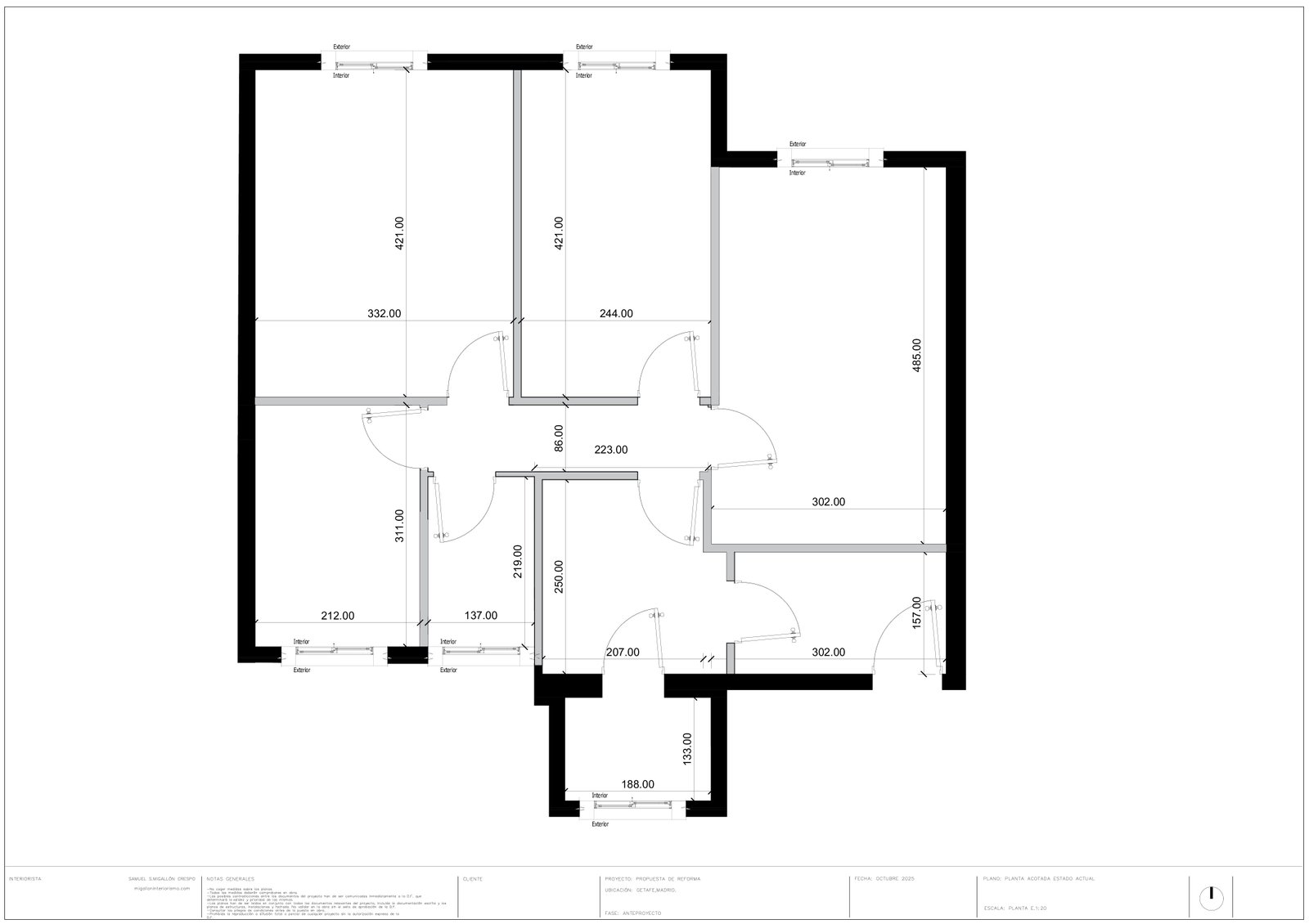
Presentamos una propuesta de reforma diseñada específicamente para maximizar la rentabilidad de este inmueble en el mercado de alquiler para estudiantes. A través de renders y planos, se plantea una distribución optimizada con 4 dormitorios, cada uno con su aseo en suite, garantizando privacidad y atractivo para estudiantes nacionales e internacionales. La propuesta incorpora una zona social amplia, una cocina funcional conectada al espacio común y una terraza exterior que añade valor y calidad de vida al conjunto.
Este proyecto demuestra el alto potencial de transformación del piso en un producto competitivo, moderno y de fácil mantenimiento. Su enfoque está dirigido al inversor que busca un activo estable, con una demanda constante y capacidad para generar rentas elevadas gracias a su diseño orientado a convivencia, confort y funcionalidad.




















